Kategorie

Krbová kamna a vložky nemají emisní třídy a nejsou plánována žádná omezení jejich používání. Krby ani kamna NEJSOU kotle.  Ověřujte si informace vždy  z důvěryhodných zdrojů - např.  www.aevd.cz

 

 

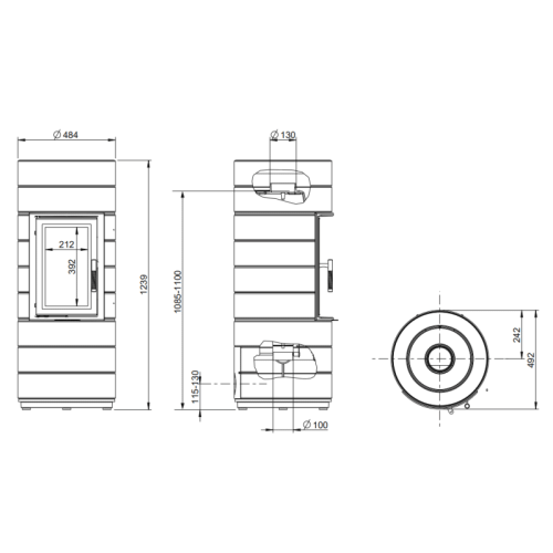
Krbová kamna Leda COLONA LITE S tmavě červený smalt, horní odkouření

DOPRAVA V ČR ZDARMA
Výrobce: LEDA
Model: Leda COLONA lite S tmavě červený smalt, horni vyvod
Dostupnost: Obvykle skladem
CZK
Maloobchodní cena 139 920 Kč 139920
Bez daně: 115 636 Kč
Množství:  

Dostupné varianty:


Příslušenství LEDA:

Krbová kamna Leda COLONA LITE S tmavě červený smalt - bordó s horním odkouřením

Litinová krbová kamna COLONA LITE S vychází z oblíbených akumulačních kamen Colona hlavně díky krásnému kulatému designu. Jedná se o menší model bez akumulace, který má nad spalovací komorou pouze 2 litinové prstence.

Kamna jsou vybavena bez-roštovou spalovací komorou, velkým zaobleným dvojitým prosklením, robustní celo-litinovou konstrukcí ve více barevných variantách (matný černý lak, nebo lesklý smalt) a mohou být napojena na externí přívod vzduchu.

Dno spalovací komory je z velmi odolného šamotu a zbytek vyzdívky z izolačního vermikulitu, který zlepšuje hoření, perfektně izoluje a ochraňuje spalovací komoru kamen.
Kamna lze také doplnit otočnou podložkou s hrdlem a díky tomu můžete i takto těžká kamna pohodlně otáčet v interiéru až o 360°.

 

PŘEDNOSTI KAMEN COLONA LITE S...

  • 4 barevné varianty – černý lak, bílý, tm. zelený nebo tm. červený (bordó) smalt
  • Masivní akumulace – váha 246 kg (možné navýšit vnitřními prstenci = až 3x 15kg)
  • Velké dvojité zaoblené prosklení
  • Celo-litinová konstrukce
  • Externí přívod vzduchu
  • Odkouření pouze 130 mm
  • Možnost otáčení až o 360° (za příplatek)

Technické parametry...

Provedení teplovzdušná
Nominální výkon (kW) 6
Rozsah výkonu (kW) 3 – 9
Výška 1239
Šířka 484
Hloubka 484
Hmotnost: min, max (kg) 246, 291
Hmotnost přídavné akumulace (kg) 45
Barva černá
Účinnost (%) 81
Energetická náročnost A+
Průměr kouřovodu (mm) 130
Horní připojení kouřovodu ano
Zadní připojení kouřovodu ne
Externí přívod vzduchu ano
Palivo dřevo (ekobrikety)
Max. délka polena (cm) 40
Obklad kamen bez obkladu
Materiál litinová
Integrovaná trouba ne
Kamna "na noze" ne
Akumulace ano
Otočná kamna ano
Prosklení čelní
Rošt ne
Umístění volně stojící
Tvar kulatá
Vzdálenost od nábytku (mm) 1100