Kategorie

Krbová kamna a vložky nemají emisní třídy a nejsou plánována žádná omezení jejich používání. Krby ani kamna NEJSOU kotle.  Ověřujte si informace vždy  z důvěryhodných zdrojů - např.  www.aevd.cz

 

 

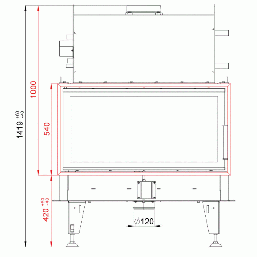
Teplovodní vložka Bef TWIN 10 N AQUATIC II

DOPRAVA V ČR ZDARMA
Výrobce: BEF
Model: 2143
Dostupnost: Obvykle skladem
CZK
Maloobchodní cena 104 819 Kč 104819
Bez daně: 86 627 Kč
Množství:  

Teplovodní vložka Bef TWIN 10 N AQUATIC II

  • Model umožňující přikládání z jiné místnosti - jedny dveře prosklené a druhé plné, oboje otvíravé do strany.
  • Optimalizovaný tvar carconového topeniště vyvinutý pomocí aerodynamického modelu.
  • Nejmasivnější akumulační materiál na trhu carcon, který je až o 100% masivnější než u starších typů. Disponuje ale i mnohem větší akumulační schopností.
  • Strukturovaný aktivní povrch carconů zachycuje partikulární částice s následným dopalováním.
  • Oblíbený formát dveří s černě podbarveným sklem a kličkou potaženou pravou kůží.
  • Externí přívod vzduchu umožňuje připojení elektronické regulace hoření.
  • Možno doobjednat čtyřstranný zazdívací rámeček s lemem 90st.

Technické údaje

Jmenovitý výkon celkový

20 kw

Jmenovitý výkon teplovodní

6,6 kw

Účinnost

85 %

Průměr kouřovodu

200 mm

Rozměr

992x510/992x510 mm

Váha

302 kg

Vlastní rozměr topeniště

615x301 mm

Délka polene

50 cm